Loft industriale in città


2015

Internal Layout - interior design - lighting design - autorizzazione edilizia / direzione cantiere

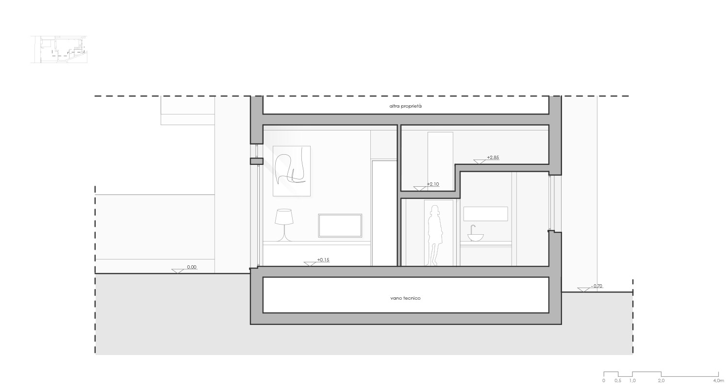
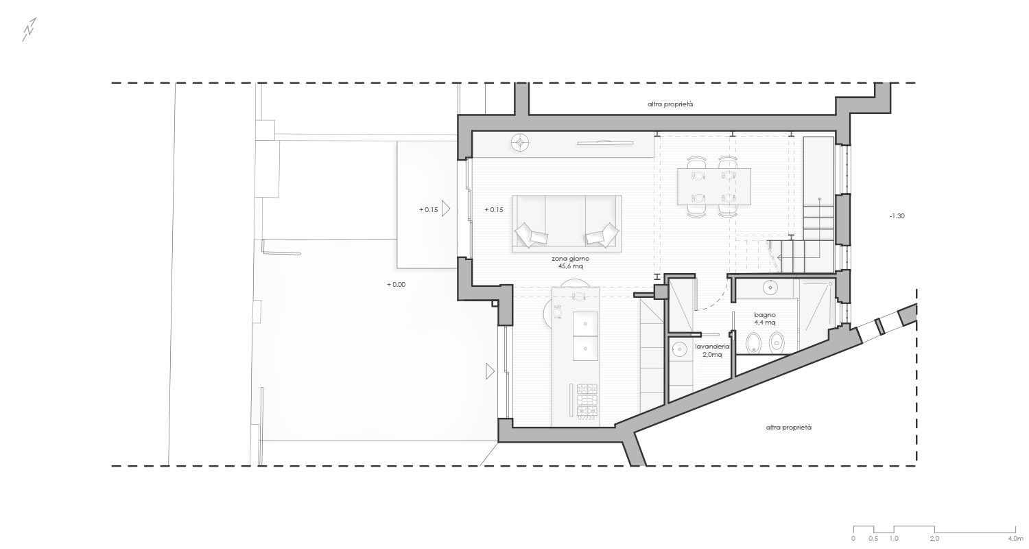
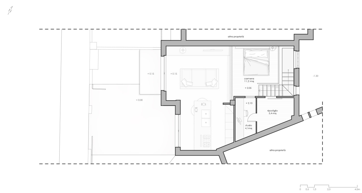
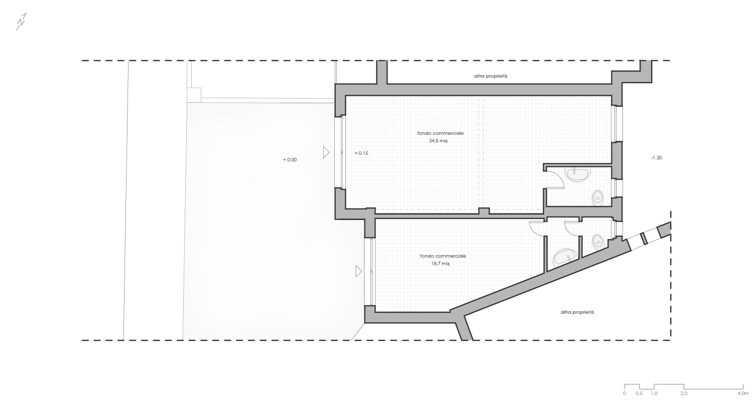
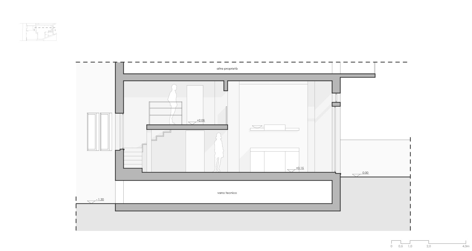
La proposta ha previsto la riconversione di due fondi a destinazione artigianale, in un'unica abitazione privata. Sfruttando l'ampia altezza, lo spazio è stato raddoppiato proponendo un soppalco dallo stile minimal e dall'atmosfera industrial.