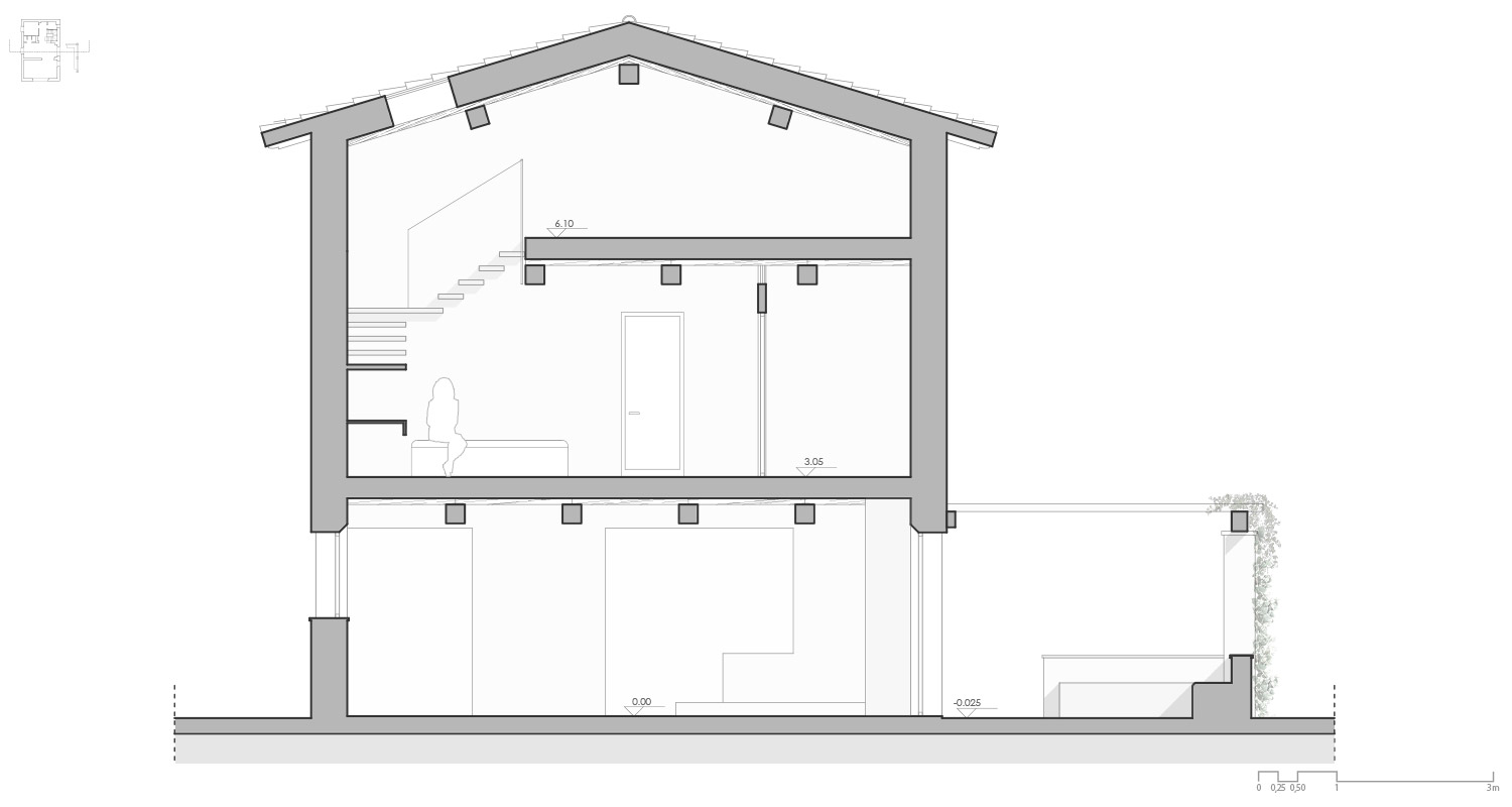
Un fienile nella campagna toscana


2017

Internal layout - interior design - lighting design - detail design - autorizzazione edilizia / direzione cantiere

La proposta alla committenza è stata una ristrutturazione che mantenesse il calore di un casale impreziosito dallo studio di dettagli contemporanei.