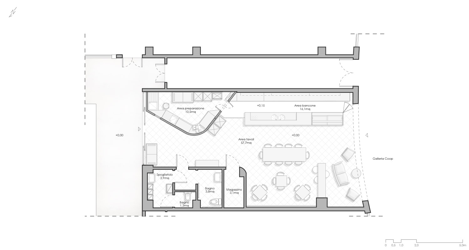
The Bar


2019 - Fucecchio (Fi)

Concept - coordinated image - internal layout - interior design - lighting design - detail design - autorizzazione edilizia / direzione cantiere

Il progetto ha previsto la riqualificazione di un locale già esistente all'interno di un centro commerciale. Sono stati valorizzati i punti di forza e personalizzati i dettagli creando una forte brand identity.